Одноэтажный жилой дом в стиле фахверк Модерн под ключ в Москве: проект, фото, цена

Nardi - Дом для семьи

Мечта для каждого

НАРДИ - ДВУХЭТАЖНЫЙ ФАХВЕРК

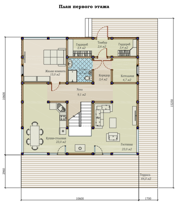
Стильный жилой дом c панорамным остеклением и вторым светом для круглогодичного проживания. Планировка и дизайн дома выполнены в стиле «ФАХВЕРК». Это хороший выбор готового дизайна из нашей коллекции. Здесь есть все необходимые помещения: тамбур, гардеробная комната, техническое помещение, котельная, три санузла, кухня-гостиная, три жилых комнаты, балкон и две просторных террасы.

В домокомплект входит


Конструктивная схема дома


Несущие стойки
Балки перекрытия
Стеновые конструкции
Конструкции кровельных и межэтажных перекрытий
Монтажный комплект
Инженерные сети

ПЛАНИРОВКА ДОМА

image
image

87 м²

1 этаж

2 спальни

1 Санузел

Остались вопросы ?

Позвоните нам прямо сейчас, и получите консультацию специалиста.

Специалист

+7 (978) 505-01-07