Двухэтажный жилой дом в стиле фахверк Ирон под ключ: проект, фото, цена

Iron - Пространство уюта

Мечта для каждой семьи

ИРОН - ДВУХЭТАЖНЫЙ ФАХВЕРК

Просторный жилой дом для большой семьи с круглогодичным проживанием. Планировка и дизайн дома выполнены в стиле «ФАХВЕРК» c панорамным остеклением и вторым светом. Это прекрасный выбор готового проекта из нашей коллекции. Здесь есть все необходимые помещения: тамбур, гардеробная комната, техническое помещение, котельная, три санузла, кухня-гостиная, три спальни и одна жилая комната для гостей, просторный балкон со стеклянным ограждением и две больших террасы.

В домокомплект входит


Конструктивная схема дома


Несущие стойки
Балки перекрытия
Стеновые конструкции
Конструкции кровельных и межэтажных перекрытий
Монтажный комплект
Инженерные сети

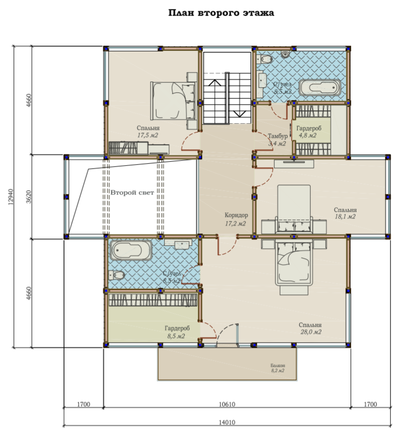
ПЛАНИРОВКА ДОМА

image
image

250 м²

2 этажа

4 спальни

3 Санузла

Остались вопросы ?

Позвоните нам прямо сейчас, и получите консультацию специалиста.

Специалист

+7 (978) 505-01-07