Двухэтажный жилой дом в стиле фахверк Ирон под ключ: проект, фото, цена

Boston - ДВУХЭТАЖНЫЙ ФАХВЕРК

Дом с плоской крышей

Бостон - ДВУХЭТАЖНЫЙ ФАХВЕРК

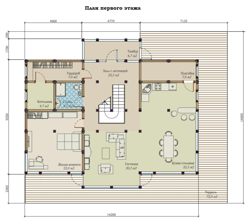
Современный жилой дом с плоской крышей, предназначен для круглогодичного проживания. Дизайн дома выполнены в стиле «МОДЕРН» с панорамным остеклением и вторым светом. Идеальная планировка дома предусматривает набор всех необходимых помещений: тамбур, холл, две гардеробные комнаты, техническое помещение, котельная, три санузла, кухня-гостиная, четыре жилых комнаты; два балкона и две просторных террасы. Домокомплект выполнен в максимальной заводской готовности с внутренней предчистовой и полной наружной отделкой.

Характеристики дома


Площадь дома: 262м²


Площадь застройки: 216м²
Площадь террасы: 70м²
Балкон наружный: 12м²
Балкон внутренний холл: 2
Тамбур: 1
Жилые комнаты: 4
Гардеробные комнаты: 2
Кухня-столовая: 1
Зал: 1
Санузел: 3
Котельная: 1

ПЛАНИРОВКА ДОМА

image
image

262 м²

2 этажа

4 спальни

3 Санузла

Остались вопросы ?

Позвоните нам прямо сейчас, и получите консультацию специалиста.

Специалист

+7 (978) 505-01-07