Двухэтажный жилой дом в стиле фахверк Берг под ключ: проект, фото, цена

BERG - УДОБСТВО И УЮТ

Комфорт везде и во всем

БЕРГ - ДВУХЭТАЖНЫЙ ФАХВЕРК

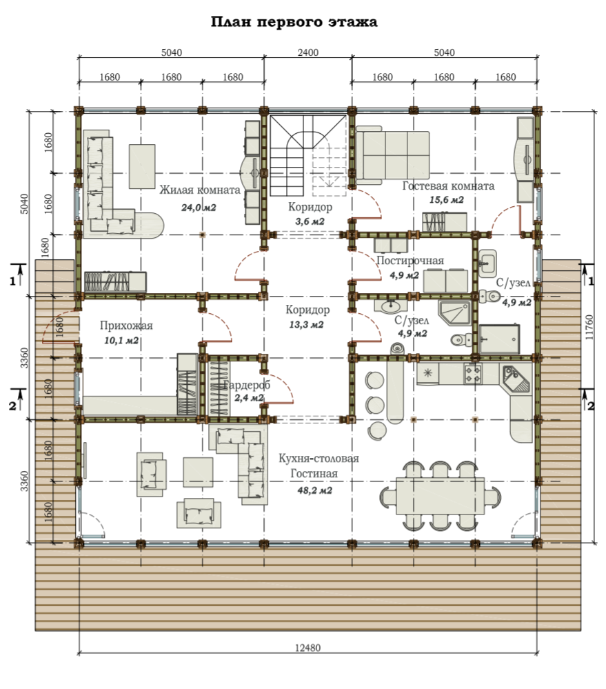
Просторный двухэтажный жилой дом для большой семьи с круглогодичным проживанием. Планировка и дизайн дома выполнены в стиле «ФАХВЕРК» c панорамным остеклением и вторым светом. Это прекрасный готовый проект из нашей коллекции. Здесь есть все необходимые помещения: прихожая, гардеробные комнаты, техническое помещение, четыре санузла, кухня-гостиная, три спальни , одна жилая комната, комната для гостей и две большие террасы.

В домокомплект входит


Конструктивная схема дома


Несущие стойки
Балки перекрытия
Стеновые конструкции
Конструкции кровельных и межэтажных перекрытий
Монтажный комплект
Инженерные сети

ПЛАНИРОВКА ДОМА

image
image

230 м²

2 этажа

5 спальни

4 Санузла

Остались вопросы ?

Позвоните нам прямо сейчас, и получите консультацию специалиста.

Специалист

+7 (978) 505-01-07